Добро пожаловать на http://vipplan.ru

Випплан Алейск - это тысячи проектов домов в нашем каталоге!

Вы всегда сможете найти для себя проект дома вашей мечты! Даже если этого не случилось, мы готовы в любую минуту предложить проект индивидуального дома.

Забыли пароль?
Вы еще не регистрировались?

Перейдите по ссылке ниже на страницу регистрации.

Регистрация...

Внимание!!!

В проектную документацию могут быть внесены изменения любой сложности, в соответствии в Вашими пожеланиями!

Полезные статьи

Применение ленточных фундаментов

Большинство людей никогда не сталкивались с выбором фундамента, а, столкнувшись, не могут определиться с выбором. Ведущие специалисты в области строительства утверждают, что лучшим типом фундамент - ленточный фундамент. Как показывает статистика, ленточный фундамент очень популярен среди жителей нашей страны. ...

Закладка фундамента дома

Закладка фундамента является одним из первых и самых главных этапов строительства любого дома. Все здание опирается именно на эту часть конструкции. Поэтому главная функция фундамента заключается в том, чтобы нести на себе весь вес несущих стен и кровли, а значит предотвращать появление перекоса стен, проседание сооружения, что неизбежно приводит к образованию трещин в стенах здания и в фундаменте....

Проекты домов и коттеджей > Каталог проектов домов > Дом с мансардой, гаражом, террасой и балконами Vg987

Дом с мансардой, гаражом, террасой и балконами Vg987

Дом с мансардой, гаражом, террасой и балконами
Зарегистрируйтесь

Проект № Vg987


Техническое описание
Общая площадь: 227.89 м2
Жилая площадь: 115.08 м2
Высота здания: 8.88 м
Размеры дома: 13.56м×13.21м
Кол-во комнат: 5
Цокольный этаж: нет
Гараж: нет
Мансарда: есть

Kонструкция
Фундамент: ленточный ж/б
Перекрытия: Сборные ж/б плиты
Материал стен: Газобетон

Архитектурный раздел
Конструктивный раздел
Инженерный раздел
АР+КР - 64 000 (Со скидкой 20%)
АР+КР+ИР - 143 800 (Со скидкой 50%)
Проект индивидуального одноэтажного одноквартирного жилого дома с мансардой с размерами здания 13,56x 13,21м. Наружная отделка здания - комбинированная: фасадная штукатурка, облицовочный кирпич, деревянные панели. Цоколь - кирпич гиперпрессованный облицовочный. Кровля - металлочерепица. Наружные стены 1 этажа: газобетонные блоки, вентзазор, отделка облицовочным кирпичом. Наружные стены мансардного этажа: газобетонные блоки с отделкой фасадной штукатуркой. Частично по фасаду - отделка деревянными панелями. Внутренние стены - из газобетонных блоков. Перегородки выполнить из СКЦ-2, с оштукатуриванием с двух сторон. Перемычки - монолитные и сварные из профиля проката. Перекрытие над первым этажом - сборные ж/б плиты перекрытий. Пол первого этажа - пол по грунту. Окна - металлопластиковые, выполненные по индивидуальному заказу. Лестница - по металлическому каркасу. Выполняется по индивидуальному заказу.
Генплан застройки участка / Паспорт проекта 7000 руб / 10000 руб
Инженерный раздел (полный) 79800 руб (114000 руб)
Смета на строительство 57000 руб
Теплотехнический расчет материалов стен Бесплатно
Стоимость проекта со незначительнми изменениями 74300 руб
Стоимость проекта со средними изменениями* 91400 руб
Стоимость проекта со значительными изменениями** 96000 руб

План первого этажа


Гараж — 23,18 кв м
Гостиная — 30,87 кв м
Столовая — 10,32 кв м
Кладовая — 3,93 кв м
Кухня — 10,28 кв м
Холл — 10,41 кв м
Тамбур — 3,90 кв м
П/п — 5,67 кв м
Бойлерная — 6,74 кв м
С/у — 4,12 кв м

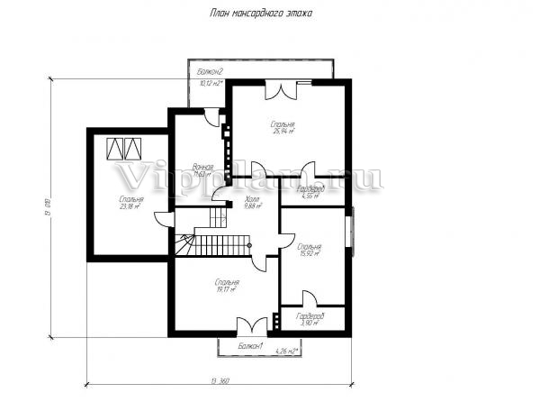
План мансардного этажа


Спальня — 25,94 кв м
Балкон 1 — 4,26 кв м
Гардероб — 4,55 кв м
Холл — 9,88 кв м
Ванная — 11,63 кв м
Спальня — 15,92 кв м
Гардероб — 3,90 кв м
Спальня — 19,17 кв м
Спальня — 23,18 кв м
Балкон 2 — 10,12 кв м
Дом с мансардой, гаражом, террасой и балконами Дом с мансардой, гаражом, террасой и балконами Дом с мансардой, гаражом, террасой и балконами Дом с мансардой, гаражом, террасой и балконами

Модификации проектов

Внесение изменений и привязка к участку строительства

В любой из проектов от компании VIPplan - Алейск по вашему желанию могут быть внесены изменения в материалы стен, материалы наружной отделки дома, а также будет произведена адаптация проекта под конкретный регион строительства (с учетом грунтов региона, геологических особенностей вашего участка и местных климатических условий) - БЕСПЛАТНО !!! (кроме проектов со скидкой и проектов наших партнеров).

Любой из проектов, размещенных на сайте aleysk.vipplan.ru мы можем выполнить из требуемых вам строительных материалов: ячеистый бетон (газобетон, пеноблок), керамоблок, кирпич, шлакоблок, бетонный блок, дерево (брус, клееный брус), каркасная технология (деревянный каркас, металлокаркас (ЛСТК)).

Фасад дома и его наружную отделку так же возможно выполнить с применением различных облицовочных материалов: структурной штукатурки, (с утеплителем и без), сайдингом (пластиковый или металлосайдинг), фиброплитами, кирпича.

 
6 Избранные
проекты

Доставка проектов по России: Москва (Московская область), Санкт-Петербург (Ленинградская область), Краснодар, Ростов-на-Дону, Ставрополь, Сочи, Волгоград, Новосибирск, Белгород, Брянск, Воронеж, Саратов, Хабаровск, Астрахань, Нальчик, Владикавказ, Екатеринбург, Тюмень, Самара, Нижний Новгород, Казань, Пермь, Уфа, Челябинск, Красноярск, Ханты-Мансийск, Иркутск, Курган, Оренбург, Омск, Томск, Барнаул, Новокузнецк, Кемерово, Абакан, Чита, Якутск, Южно-Сахалинск, Петропавловск-Камчатский и страны ближнего зарубежья: Белоруссия, Украина, Казахстан