Добро пожаловать на http://vipplan.ru

Випплан Алейск - это тысячи проектов домов в нашем каталоге!

Вы всегда сможете найти для себя проект дома вашей мечты! Даже если этого не случилось, мы готовы в любую минуту предложить проект индивидуального дома.

Забыли пароль?
Вы еще не регистрировались?

Перейдите по ссылке ниже на страницу регистрации.

Регистрация...

Внимание!!!

В проектную документацию могут быть внесены изменения любой сложности, в соответствии в Вашими пожеланиями!

Полезные статьи

Советы по проектированию дома

Представляем Вашему вниманию несколько советов по проектированию дома. Все что касается выбора участка, размещению дома на участке, подбора проекта на строительство дома, советы по выбору технологии строительства и материалов и т.д....

Инженерный раздел архитектурно-строительного проекта

Понятие «комфортный, теплый и уютный дом» включает в себя грамотно рассчитанные и проведенные инженерные сети. Наша компания, имея большой опыт, возьмет на себя весь комплекс мероприятий по проектированию вашего дома, связанные с планировкой, выбором материалов и устройством инженерных систем (инженерный раздел проекта дома: электрика, отопление, водоснабжение и канализация)...

Проекты домов и коттеджей > Каталог проектов домов > Проект одноэтажного дома с мансардой, террасой и гаражом на две машины Vg2413

Проект одноэтажного дома с мансардой, террасой и гаражом на две машины Vg2413

Проект одноэтажного дома с мансардой, террасой и гаражом на две машины
Зарегистрируйтесь

Проект № Vg2413


Техническое описание
Общая площадь: 249.66 м2
Жилая площадь: 140.56 м2
Высота здания: 9 м
Размеры дома: 16.38м×11.28м
Кол-во комнат: 6
Цокольный этаж: нет
Гараж: нет
Мансарда: есть

Kонструкция
Фундамент: Ленточный монолитны ж/б
Перекрытия: Сборные ж/б плиты
Материал стен: Газобетон

Архитектурный раздел
Конструктивный раздел
АР+КР - 64 000 (Со скидкой 20%)
Проекта одноэтажного дома с мансардой с размерами здания 16,38 x 11,28 м. Фундамент - ленточный монолитный ж/б. Наружные стены - газобетонный блок, утеплитель, вентилируемый зазор и отделка облицовочным кирпичом. Внутренние стены - газобетонный блок. Перегородки - забутовочный кирпич (1 этаж), газобетонный блок (мансарда). Пол первого этажа - пол по сборным ж/б плитам перекрытия. Межэтажное перекрытие - сборные ж/б плиты перекрытия. Крыша - многоскатная. Кровля - металлочерепица. Окна - металлопластиковые. Лестница - деревянная.
Генплан застройки участка / Паспорт проекта 7000 руб / 10000 руб
Инженерный раздел (полный) 125000 руб
Смета на строительство 62500 руб
Теплотехнический расчет материалов стен Бесплатно
Стоимость проекта со незначительнми изменениями 73750 руб
Стоимость проекта со средними изменениями* 92500 руб
Стоимость проекта со значительными изменениями** 97500 руб

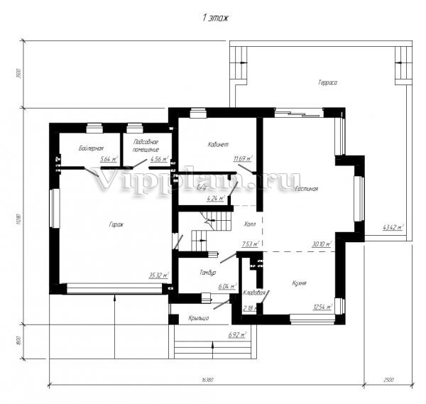
План первого этажа


Тамбур - 6,04 кв м
Холл - 7,53 кв м
Гостиная - 30,10 кв м
Кухня - 12,54 кв м
Кладовая - 2,18 кв м
С/у - 4,24 кв м
Кабинет - 11,69 кв м
Подсобка - 4,56 кв м
Бойлерная - 5,64 кв м
Гараж - 35,32 кв м

План мансардного этажа


Холл - 6,93 кв м
Бильярдная - 46,42 кв м
С/у - 12,03 кв м
Спальня - 17,88 кв м
Спальня - 18,69 кв м
Гардероб - 8,93 кв м
Спальня - 15,78 кв м
Балкон 3,16 кв м
Проект одноэтажного дома с мансардой, террасой и гаражом на две машины Проект одноэтажного дома с мансардой, террасой и гаражом на две машины Проект одноэтажного дома с мансардой, террасой и гаражом на две машины Проект одноэтажного дома с мансардой, террасой и гаражом на две машины

Модификации проектов

Внесение изменений и привязка к участку строительства

В любой из проектов от компании VIPplan - Алейск по вашему желанию могут быть внесены изменения в материалы стен, материалы наружной отделки дома, а также будет произведена адаптация проекта под конкретный регион строительства (с учетом грунтов региона, геологических особенностей вашего участка и местных климатических условий) - БЕСПЛАТНО !!! (кроме проектов со скидкой и проектов наших партнеров).

Любой из проектов, размещенных на сайте aleysk.vipplan.ru мы можем выполнить из требуемых вам строительных материалов: ячеистый бетон (газобетон, пеноблок), керамоблок, кирпич, шлакоблок, бетонный блок, дерево (брус, клееный брус), каркасная технология (деревянный каркас, металлокаркас (ЛСТК)).

Фасад дома и его наружную отделку так же возможно выполнить с применением различных облицовочных материалов: структурной штукатурки, (с утеплителем и без), сайдингом (пластиковый или металлосайдинг), фиброплитами, кирпича.

 
6 Избранные
проекты

Доставка проектов по России: Москва (Московская область), Санкт-Петербург (Ленинградская область), Краснодар, Ростов-на-Дону, Ставрополь, Сочи, Волгоград, Новосибирск, Белгород, Брянск, Воронеж, Саратов, Хабаровск, Астрахань, Нальчик, Владикавказ, Екатеринбург, Тюмень, Самара, Нижний Новгород, Казань, Пермь, Уфа, Челябинск, Красноярск, Ханты-Мансийск, Иркутск, Курган, Оренбург, Омск, Томск, Барнаул, Новокузнецк, Кемерово, Абакан, Чита, Якутск, Южно-Сахалинск, Петропавловск-Камчатский и страны ближнего зарубежья: Белоруссия, Украина, Казахстан